Späť na článok
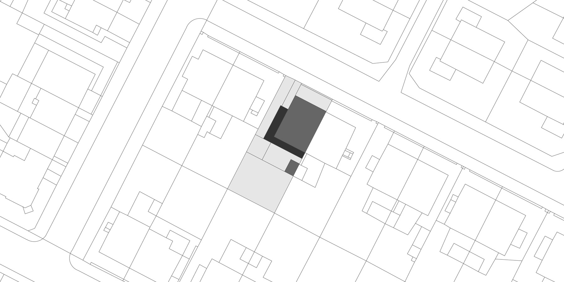
Keď sa rekonštruuje len polovica dvojdomu
17 / 26
rd pospisilova dsps 001