Späť na článok Haus am Moor – dom v mokradi
13 / 18
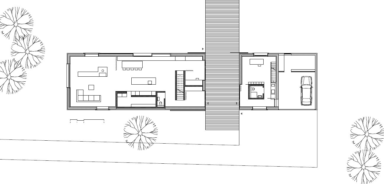
plan 1