Späť na článok
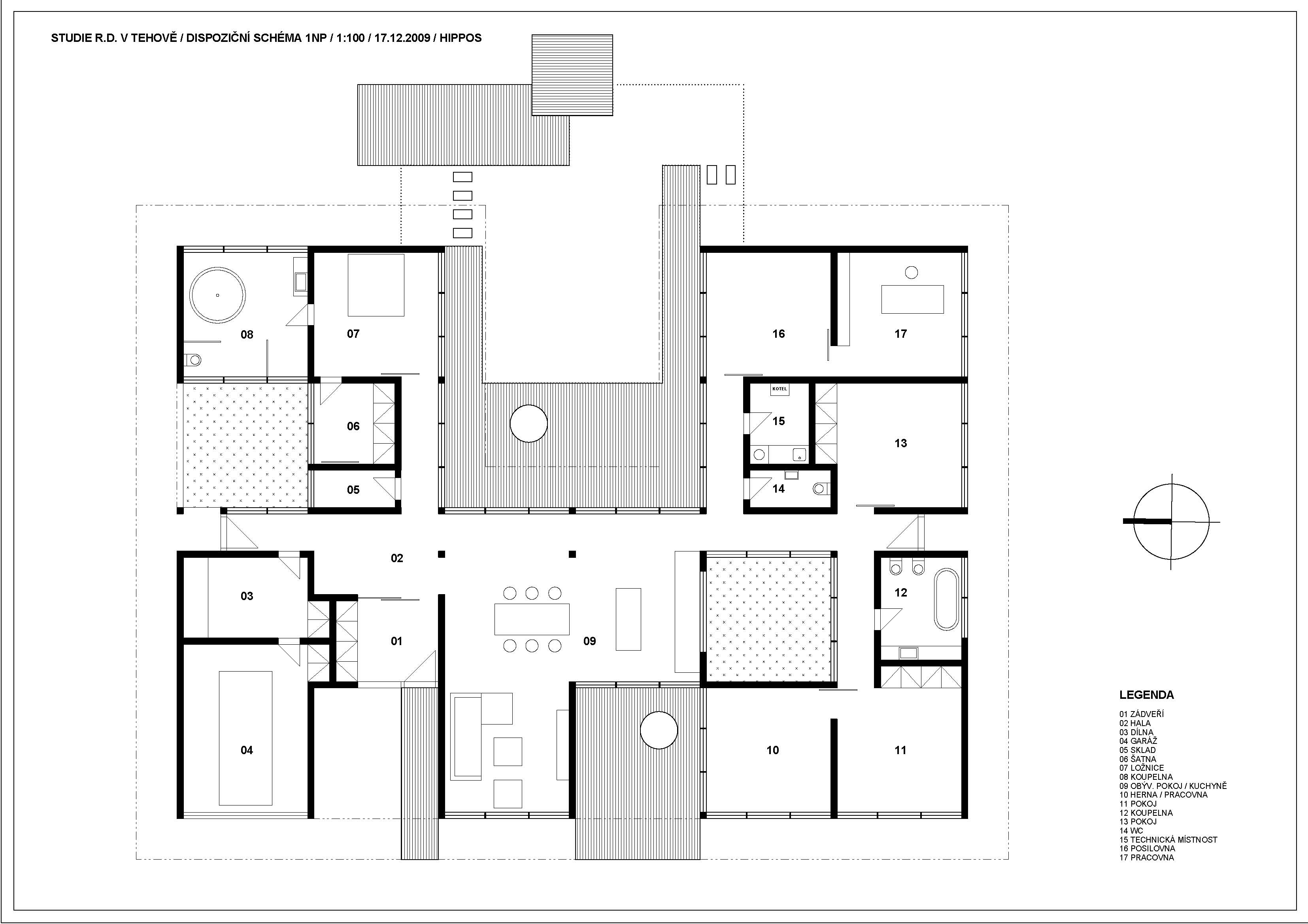
Voda a zeleň ako srdce drevostavby
13 / 19
06Tehov