Späť na článok
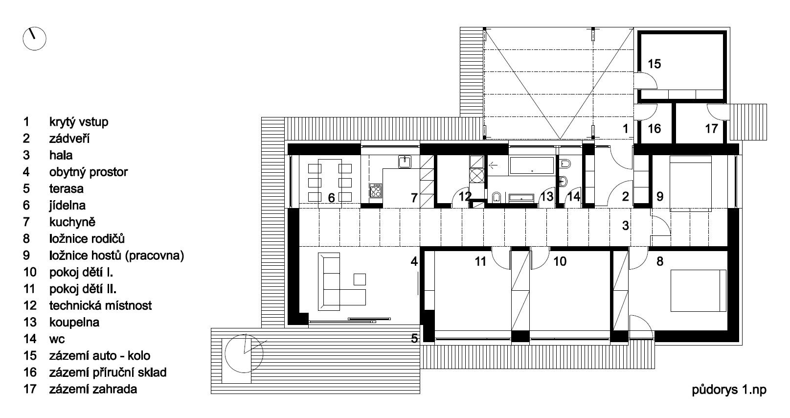
Drevostavba s nízkoenergetickým štandardom
17 / 19
rdbaranovice 17