Späť na článok Drevodom v Pekle
8 / 17
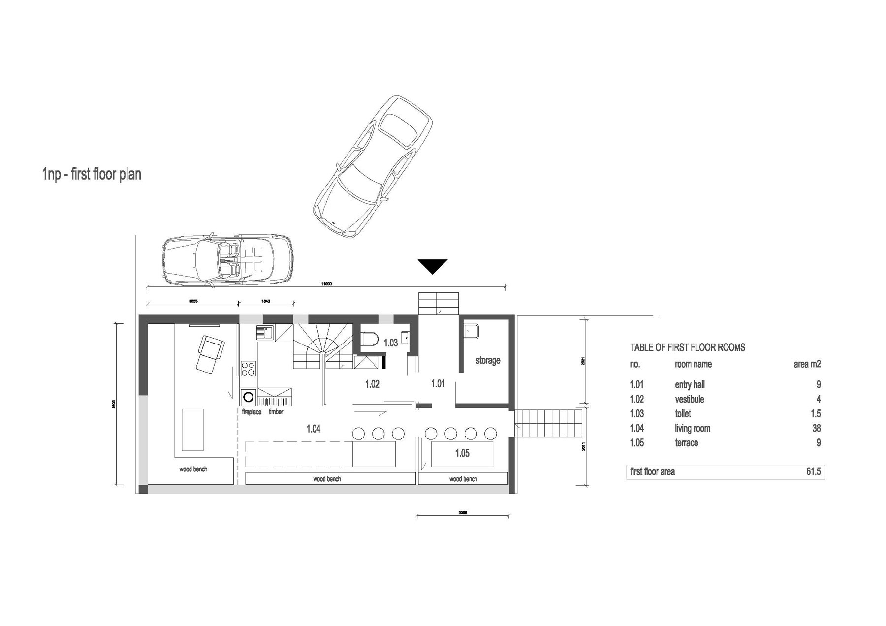
Peklo 1NP first floor plan