Späť na článok Drevenica, ktorá znovu ožila
7 / 40
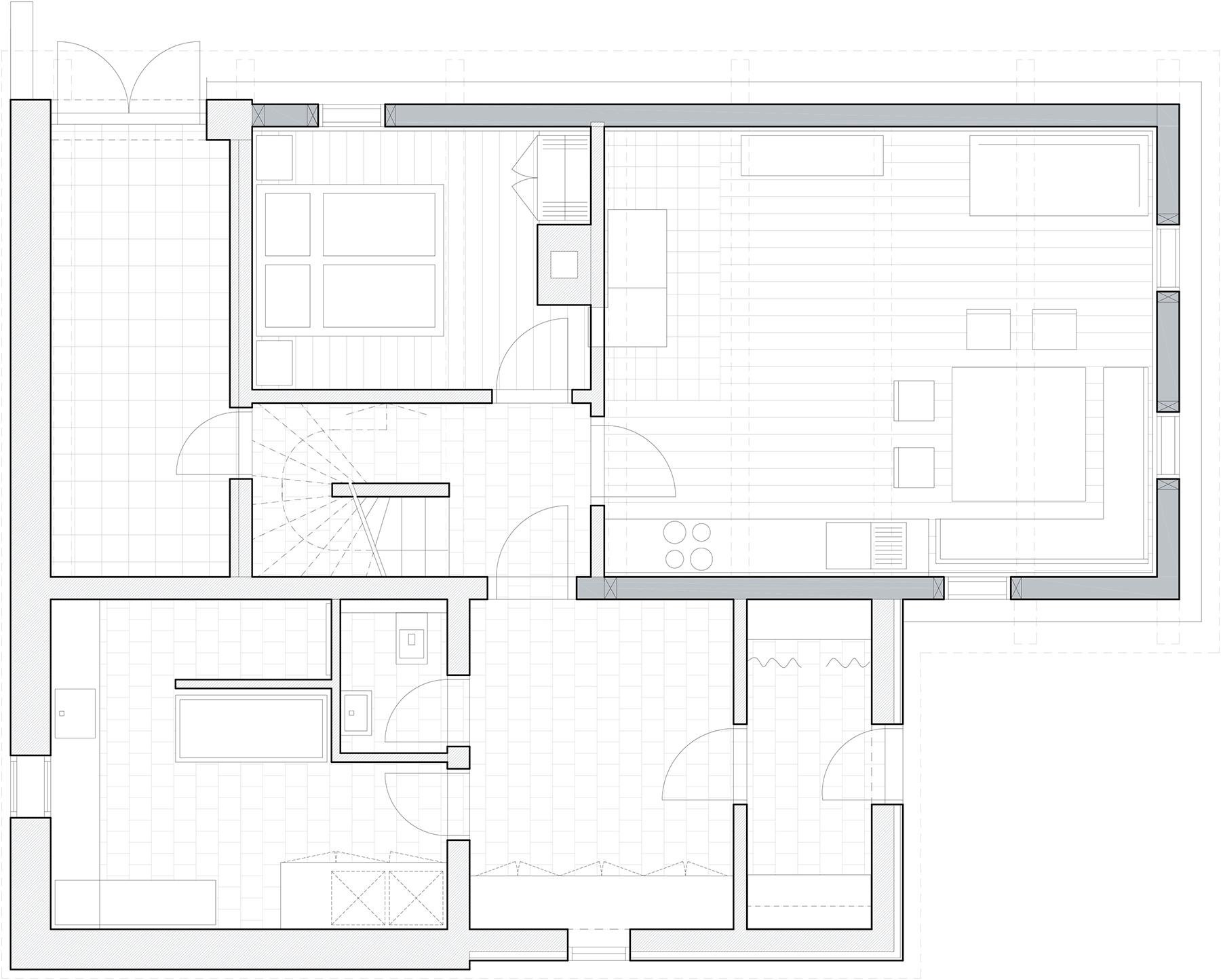
pudorys prizemi