Späť na článok
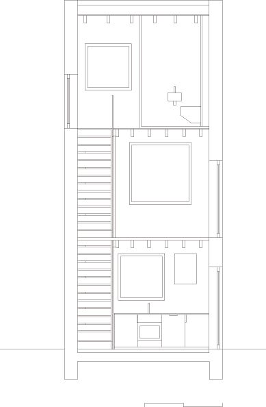
Dom, ktorý zaberá menej ako dve parkovacie miesta
10 / 40
10 Slim Fit doorsnede C