Späť na článok
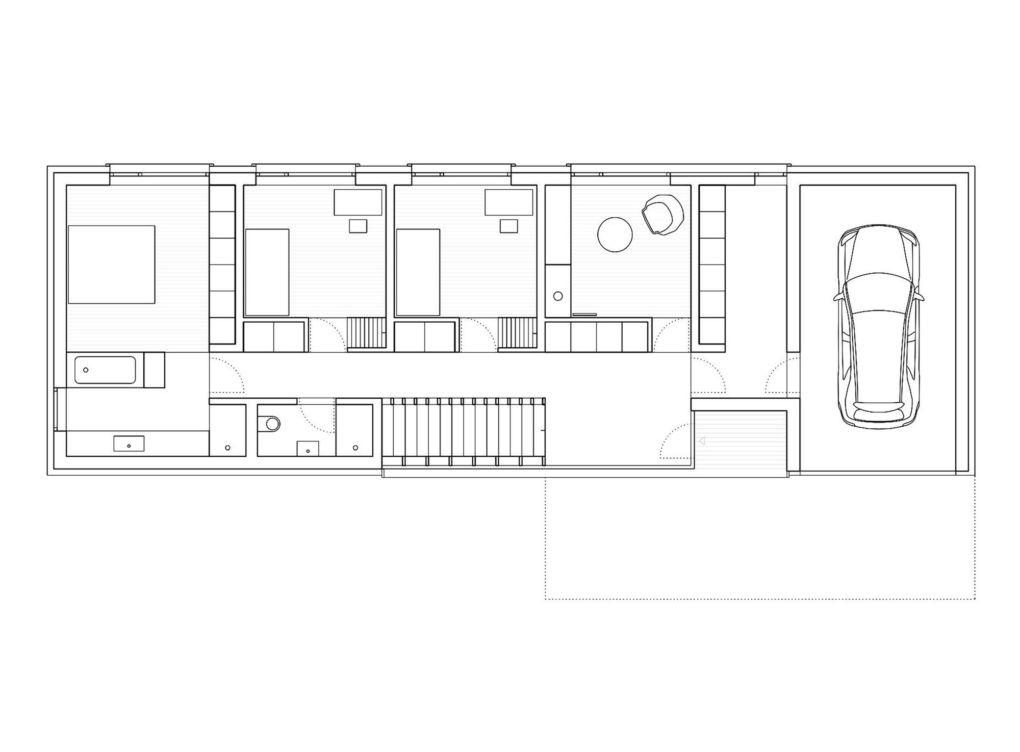
Aj moderný rodinný dom zapadá do vidieckej zástavby
16 / 20
IMA HBJ Obergeschoss