Späť na článok Dom s 360-stupňovým výhľadom do prírody
14 / 17
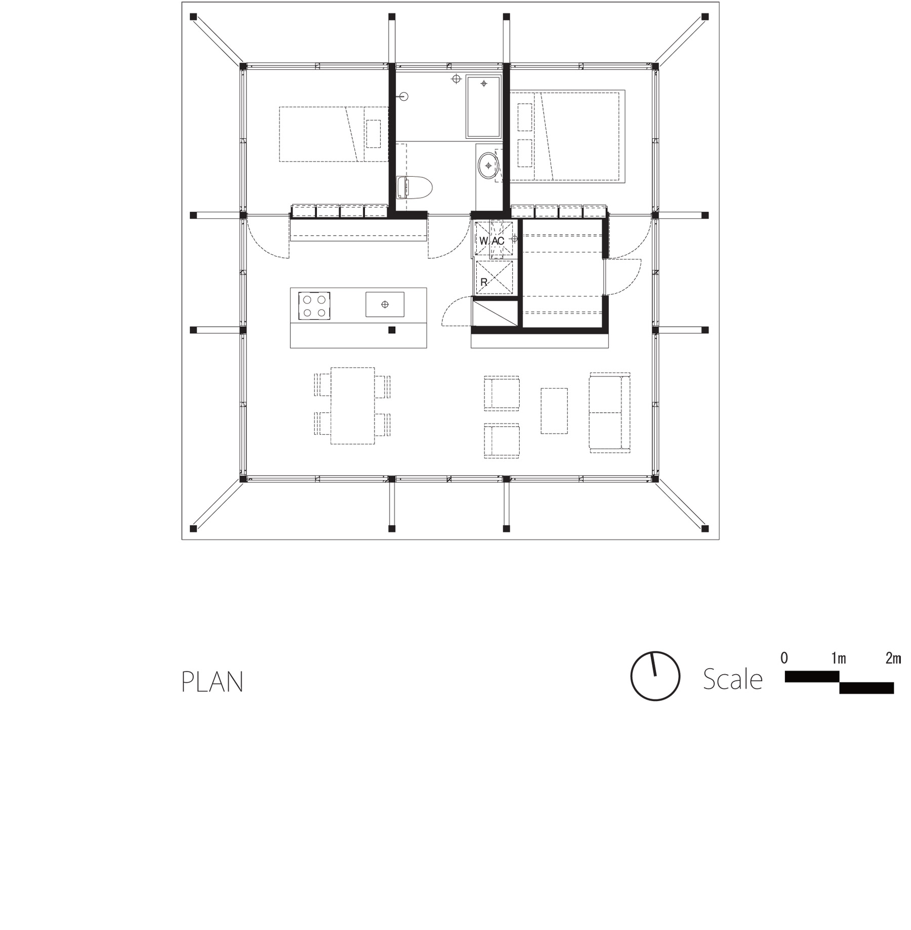
PLAN
PLAN
ASB Logo ASB Logo