Späť na článok
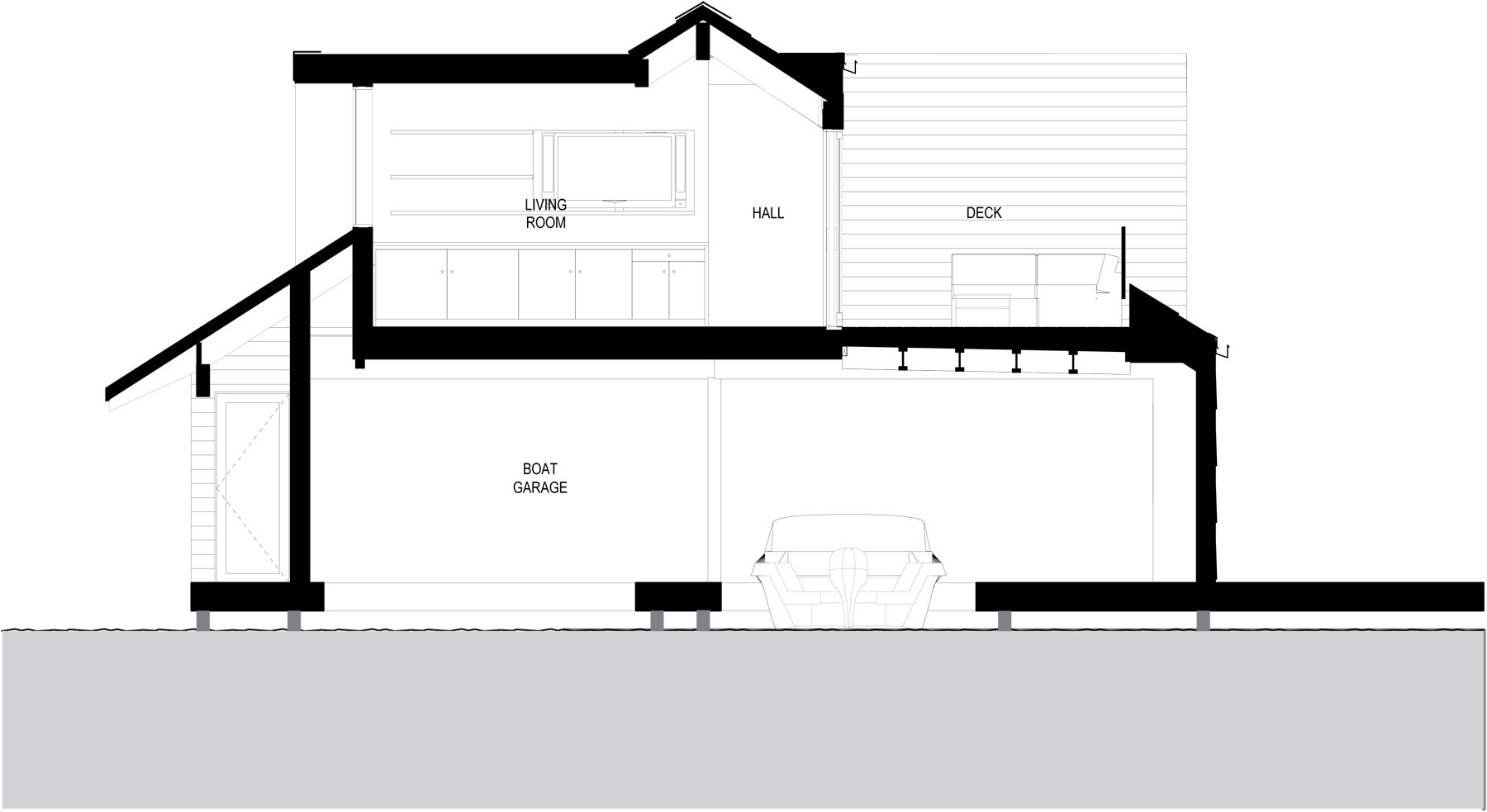
Dom na jazere s parkovaním pre člny
6 / 22
Lake Joseph Boathouse by Altius Section 1