Späť na článok
Dom na jazere s parkovaním pre člny
2 / 22
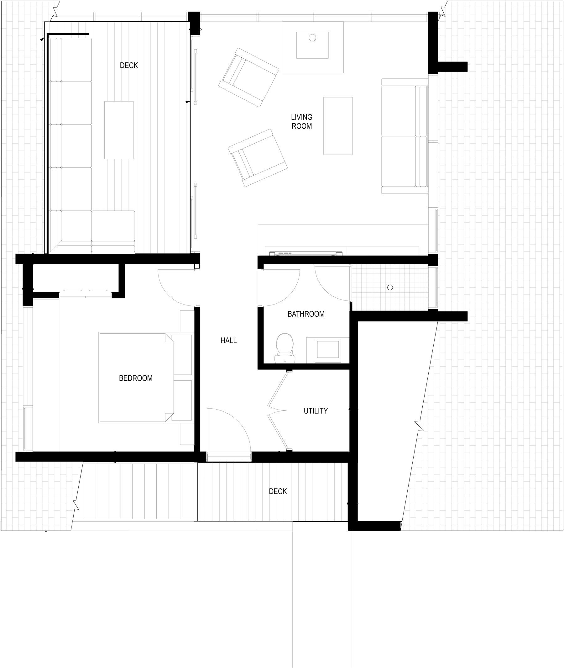
Lake Joseph Boathouse by Altius Upper Floor