Späť na článok
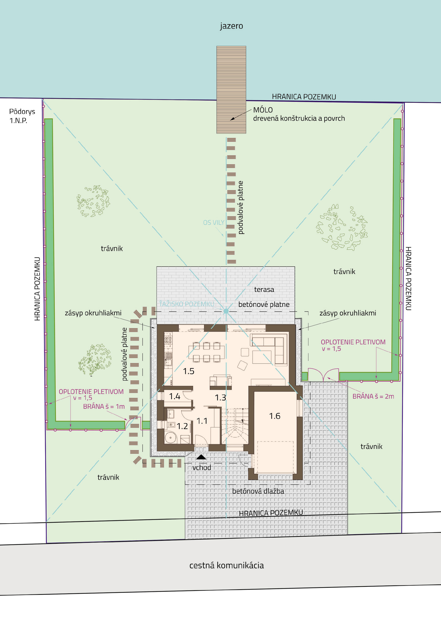
Bývanie pri vode a neďaleko golfu
15 / 21
Albatros podorys