Späť na článok
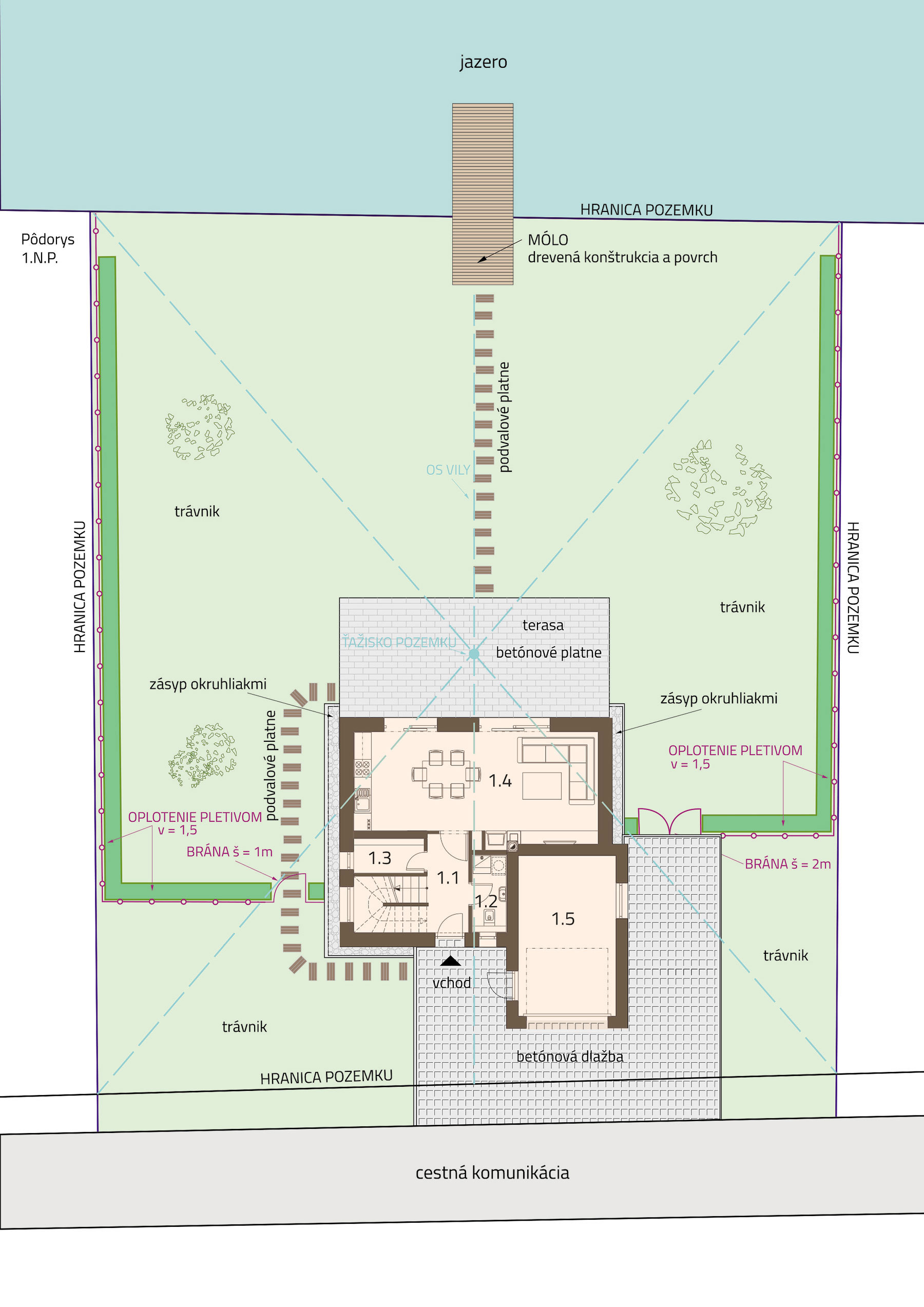
Bývanie pri vode a neďaleko golfu
13 / 21
eagle podorys