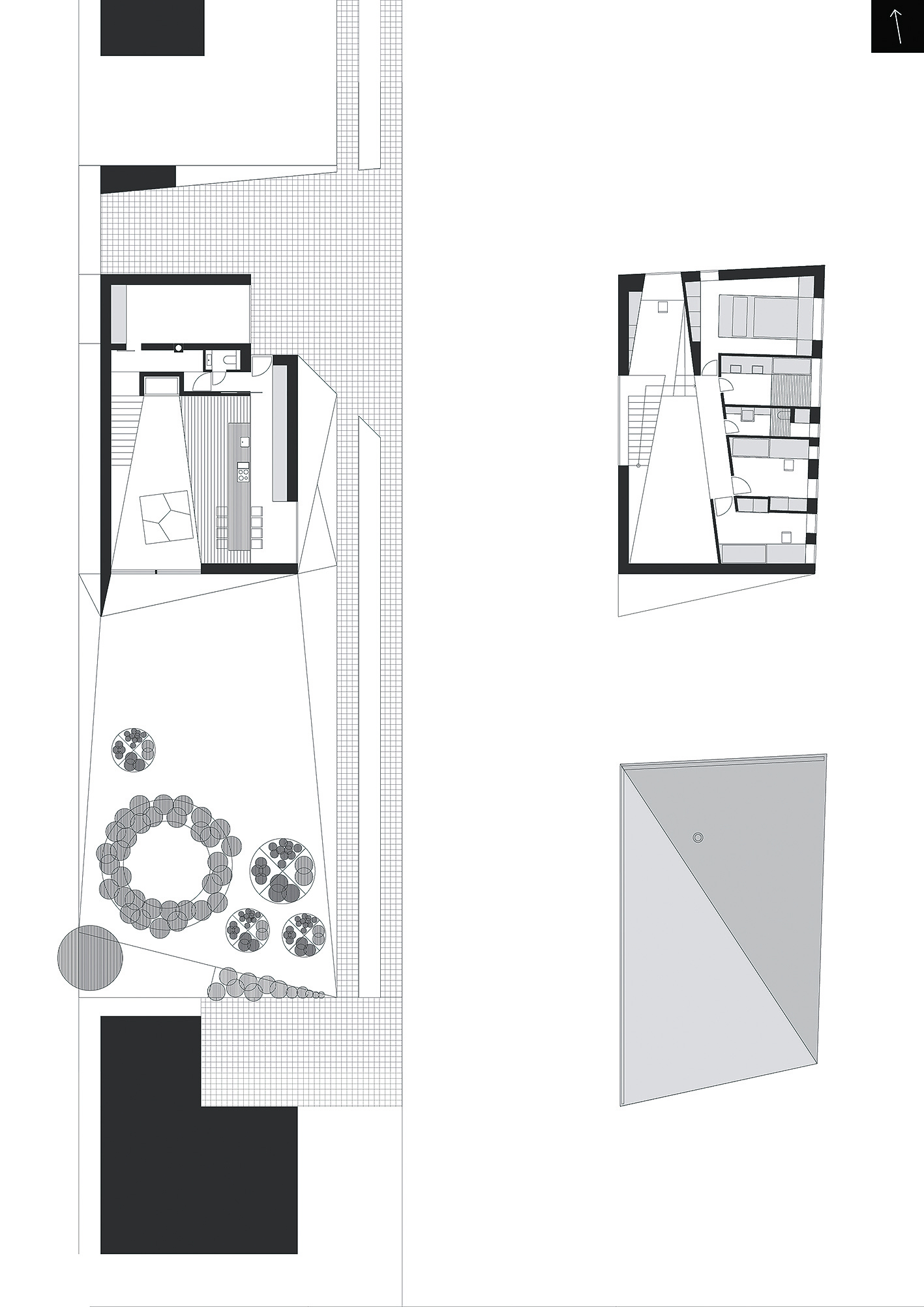
Späť na článok Architektov dom zapadol do vidieckej krajiny
6 / 7
ASB Logo ASB Logo