Späť na článok
3x prázdninové útočisko v krajine
15 / 27
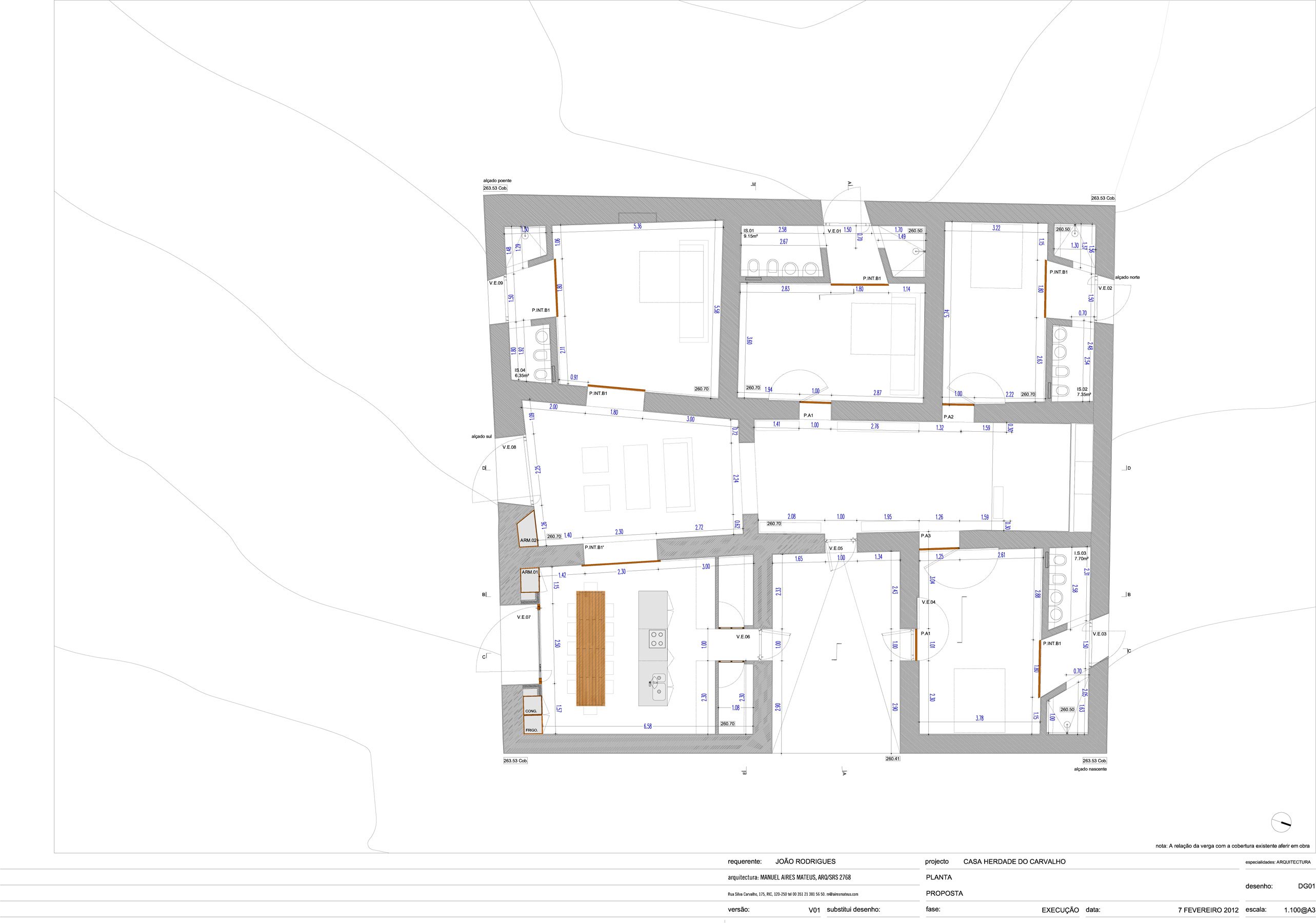
podorys