Späť na článok
Polyfukčný dom Lužná: na strategickom mieste
5 / 7
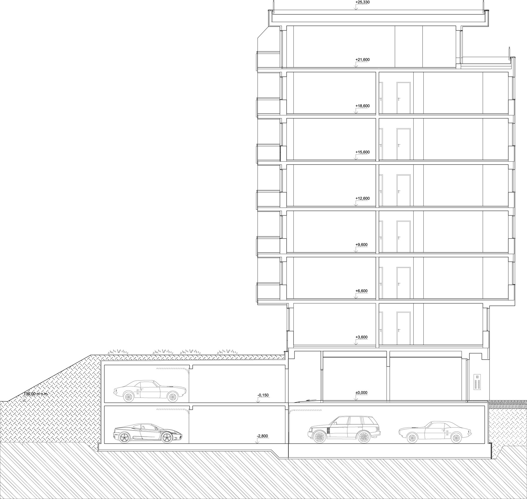
05 Vodotika rez priecny Model 1 000