Späť na článok
Pasívny dom s radikálnym výrazom. Z ulice uzatvorený, od záhrady plný slnka
30 / 34
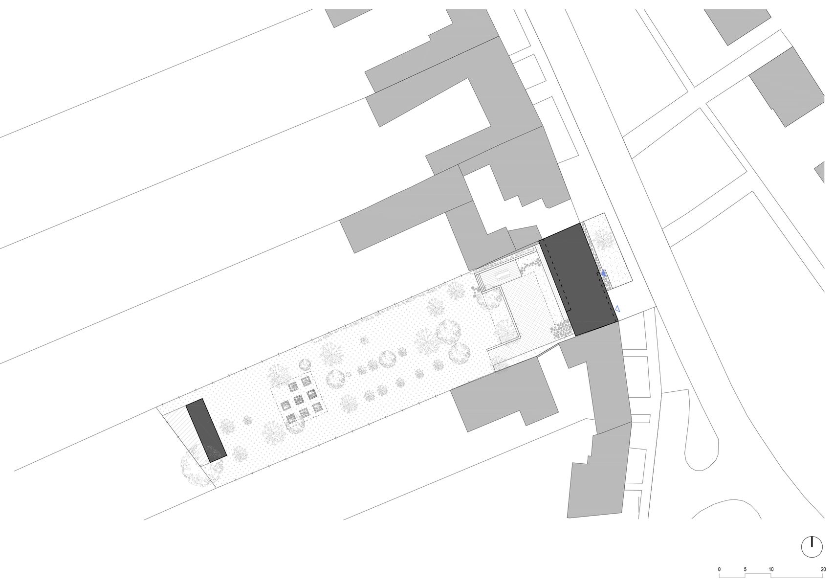
Situácia objektu.
Zdroj: CL3