Späť na článok Detské jasle opláštené vláknocementovými doskami
8 / 11
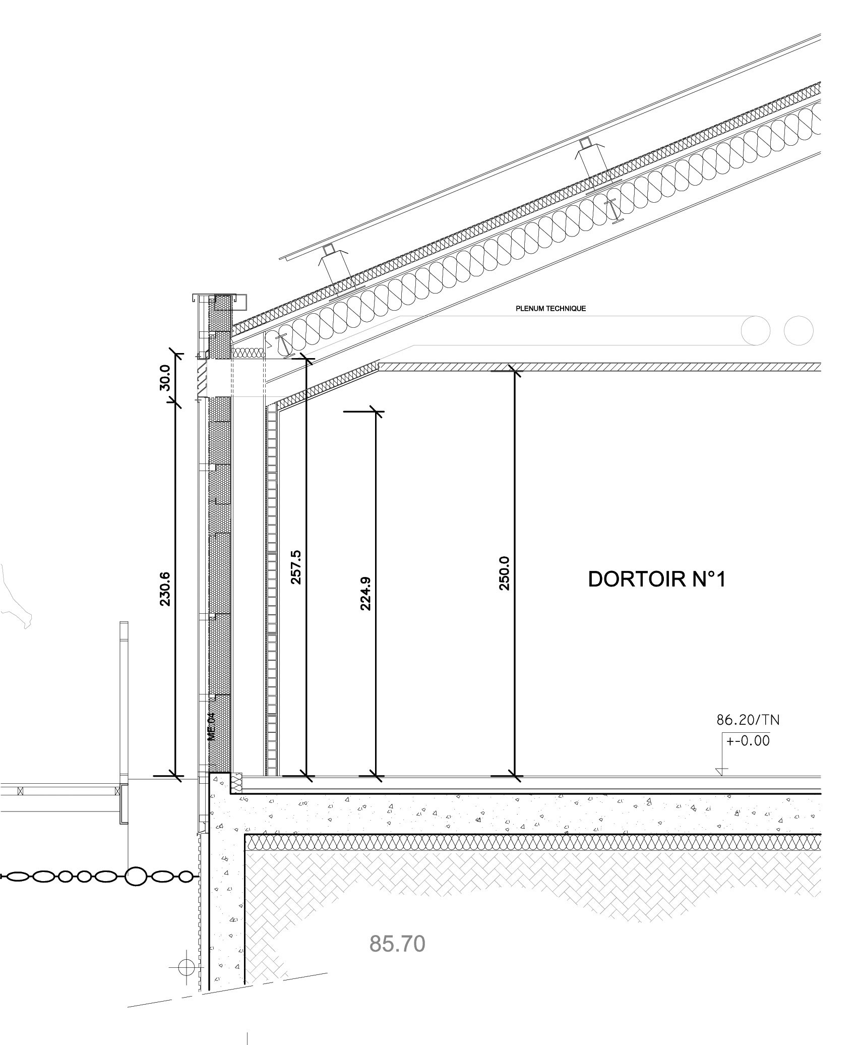
rez2
rez2
ASB Logo ASB Logo