Späť na článok
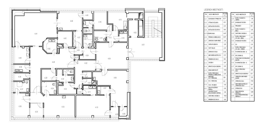
Najmodernejšia očná klinika na Slovensku
11 / 15
4.NP 12