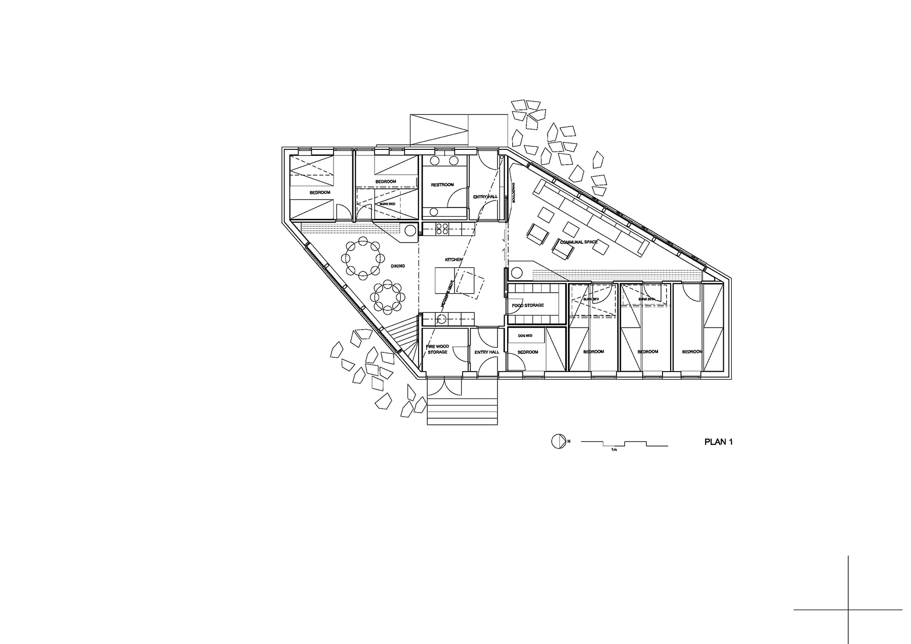
Späť na článok Turistická chata so záchrannou chatkou vo výške 1 200 metrov nad morom
17 / 35
PLAN
PLAN
ASB Logo ASB Logo