Späť na článok
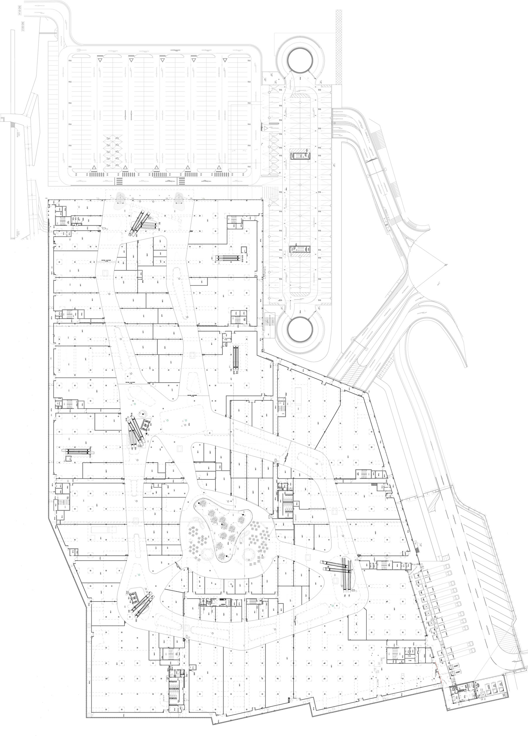
Bory Mall sa neobáva sýteho bratislavského trhu
5 / 10
001 ARS 1005 1NP Model 1