Späť na článok
Štýlový byt s medenými rúrkami, ktoré majú viacero funkcií
3 / 25
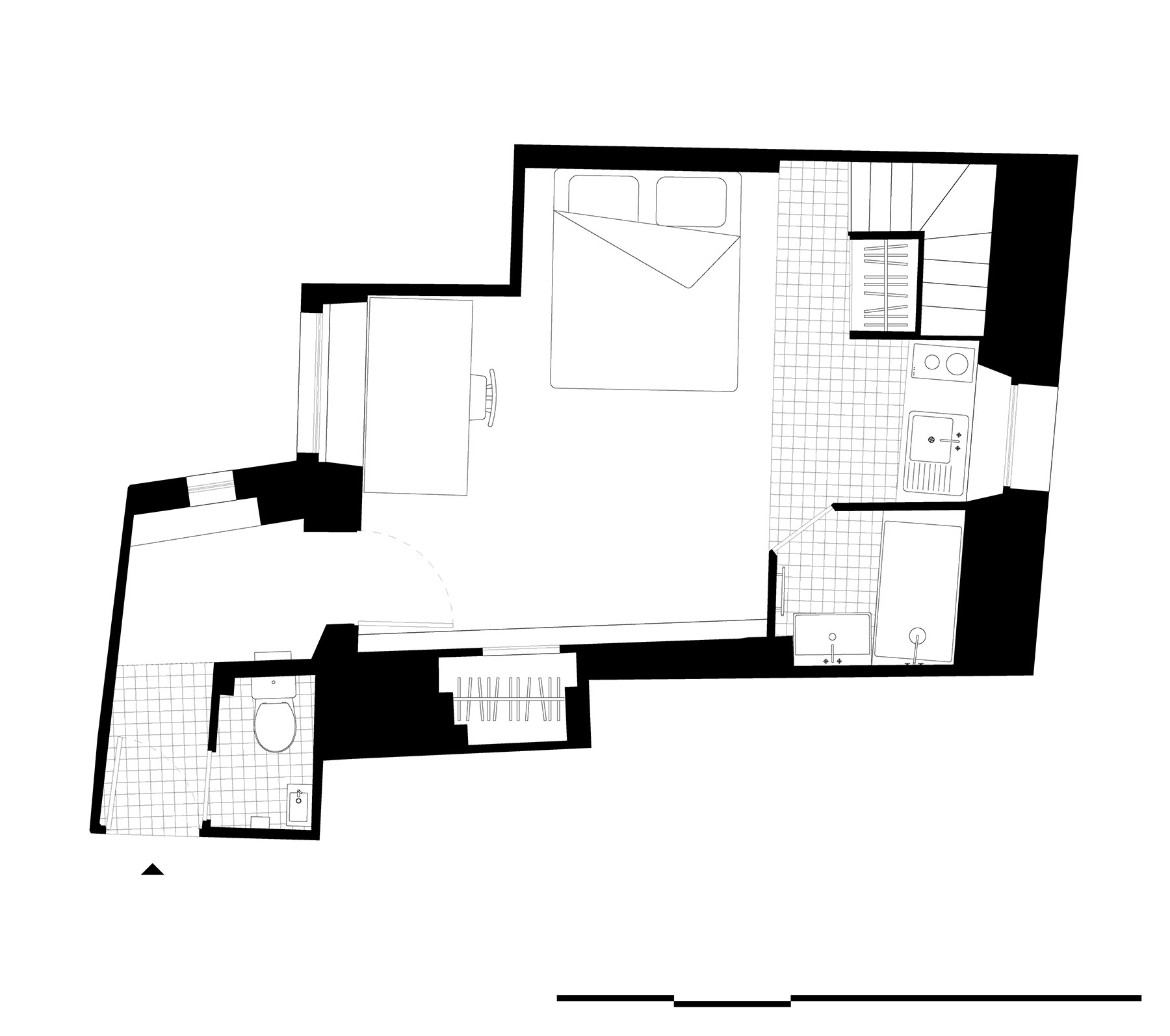
00 ARIEL CLAUDET SHAKERS STUDIO PLAN