Späť na článok
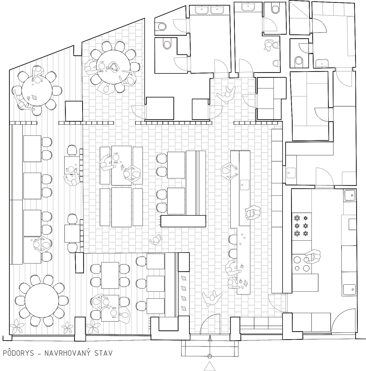
Čínska reštaurácia Jasmín v Bratislave
7 / 9
JSMN navrhovany stav3