Späť na článok Byt, v ktorom nájdete históriu i budúcnosť v rovnováhe
20 / 21
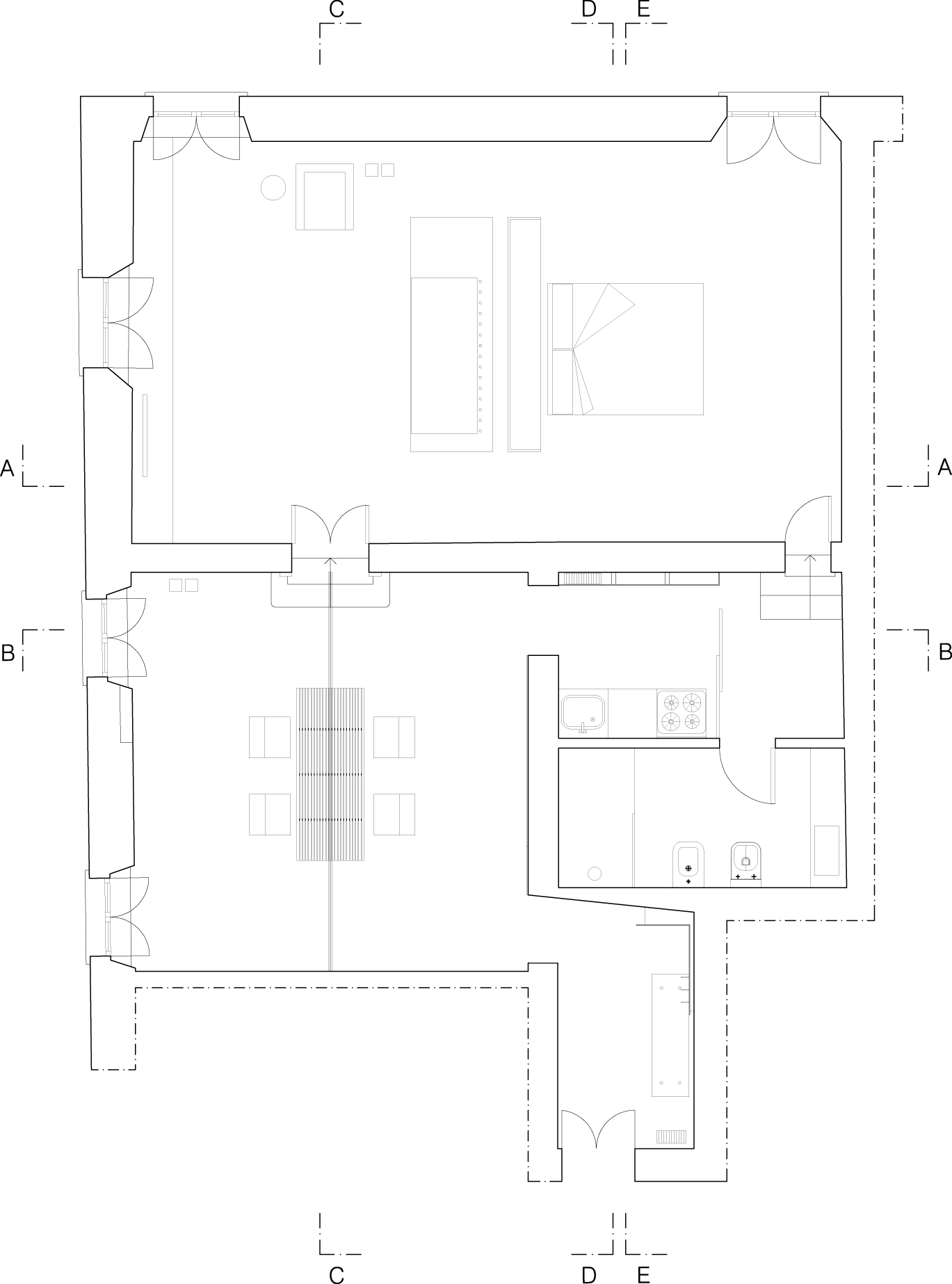
PLAN
PLAN
ASB Logo ASB Logo