Späť na článok
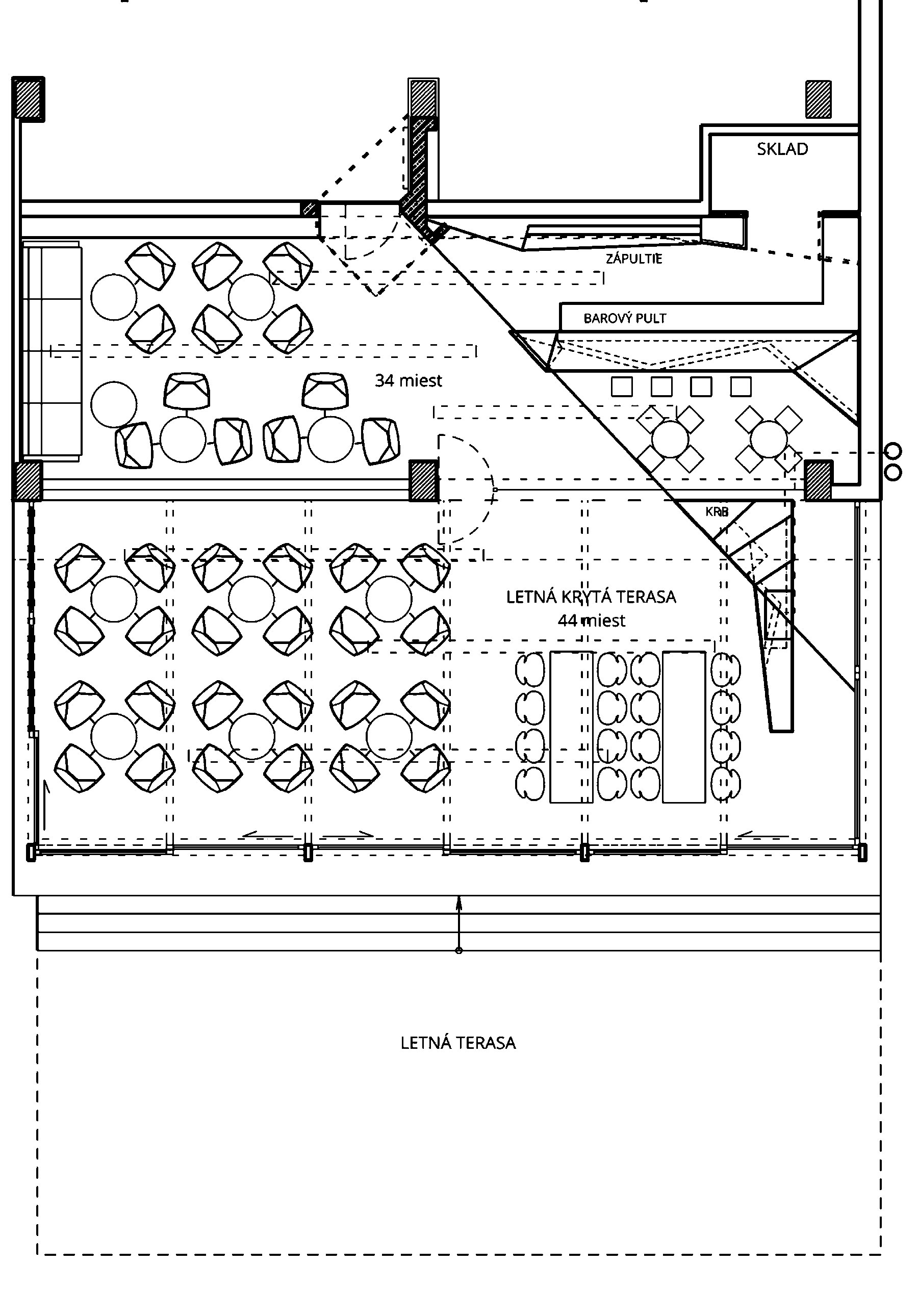
Barový pult z brúseného betónu
5 / 6
podorys 1 100 novy 10cm