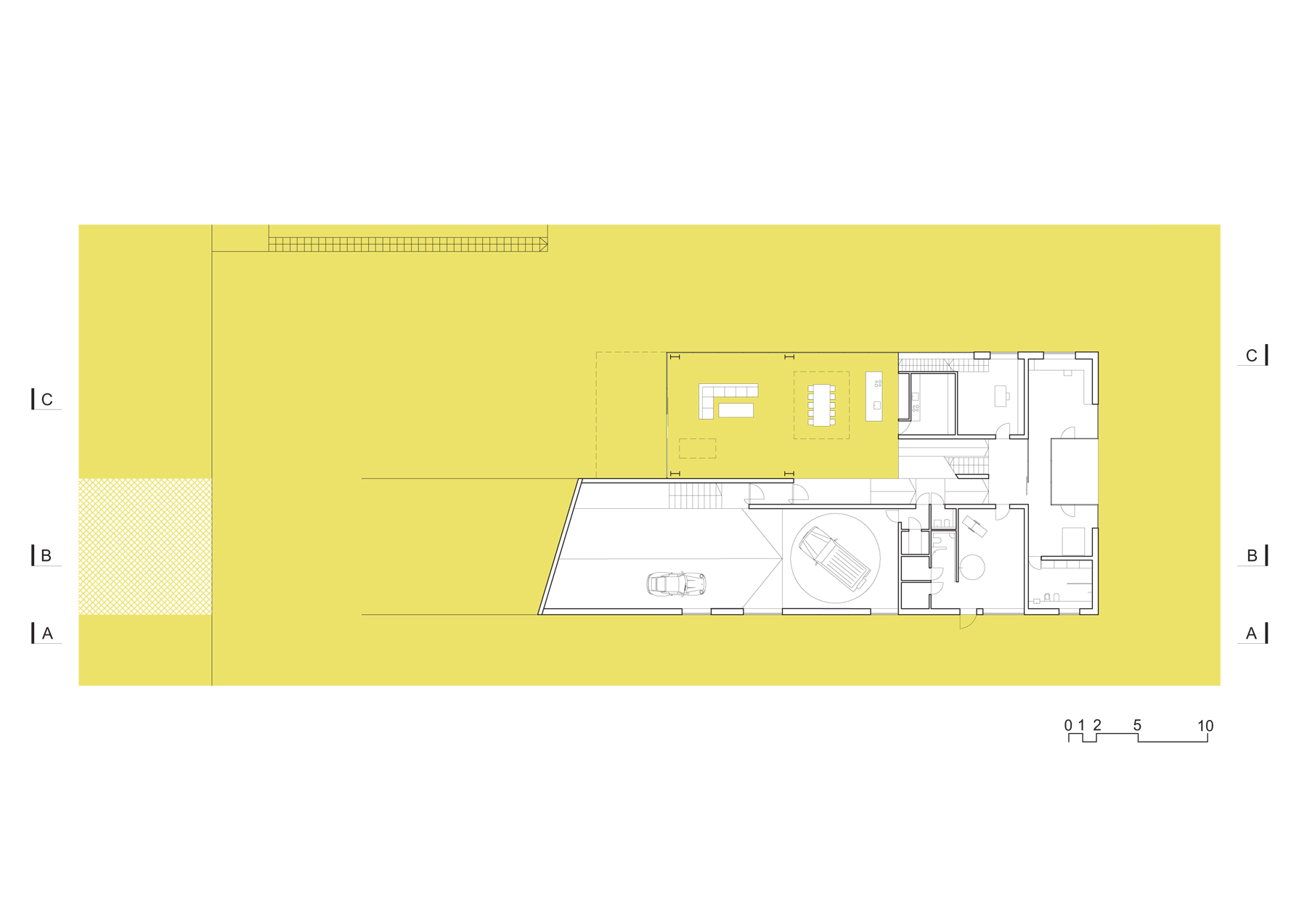
Späť na článok Autom do rodinného domu priamo cez hlavný vchod
5 / 22
05
05
ASB Logo ASB Logo