Späť na článok
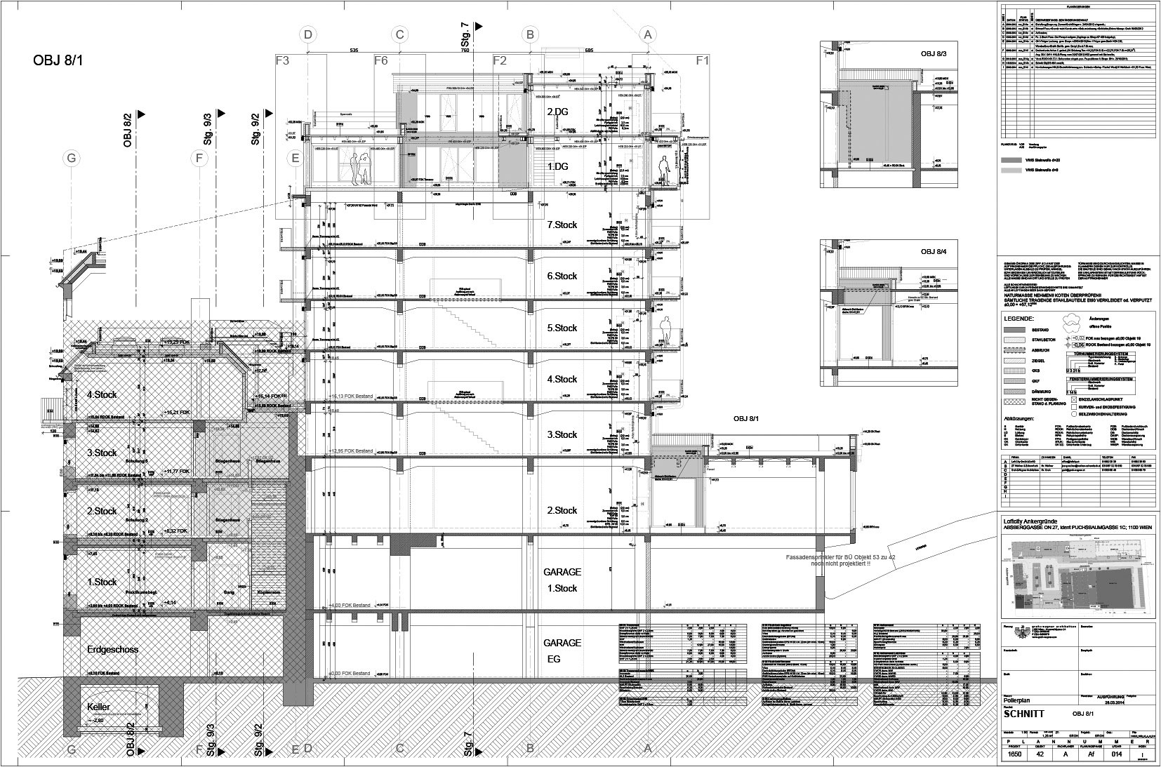
Loft City: návod ako zachrániť industriálnu architektúru
2 / 16
140328 1650 42 A Af 014i 14cm