Späť na článok
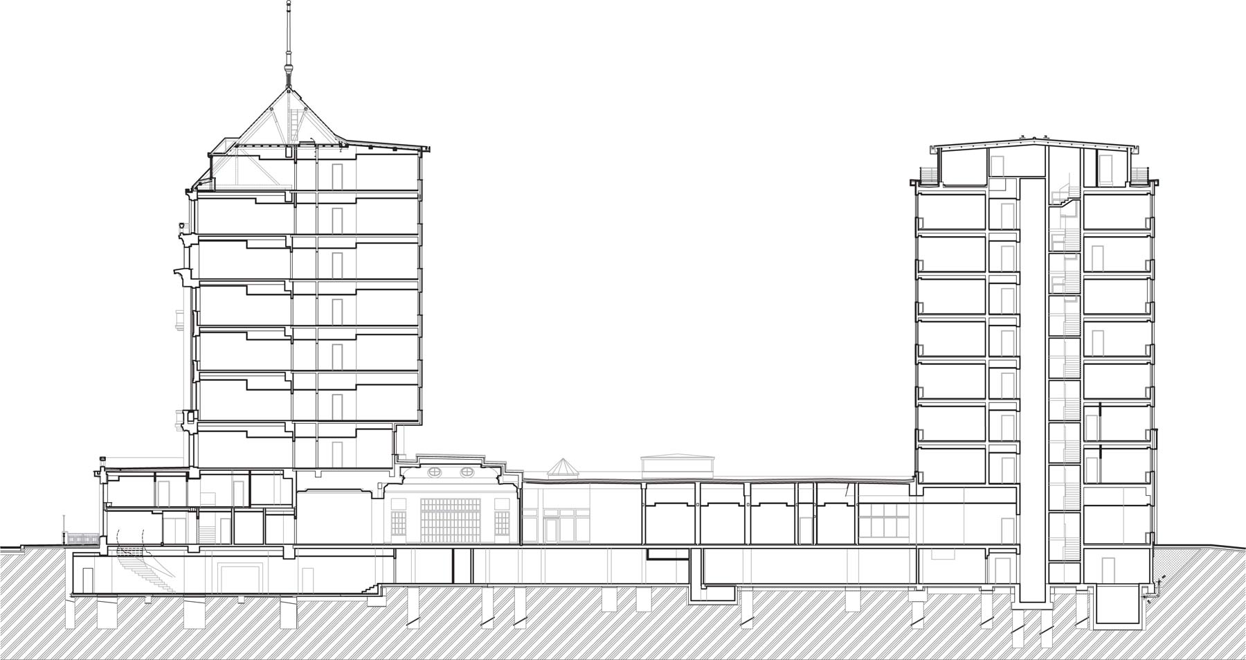
Ikona slovenskej architektúry 20. storočia: hotel Carlton
3 / 12
CARLTON Priecny rez