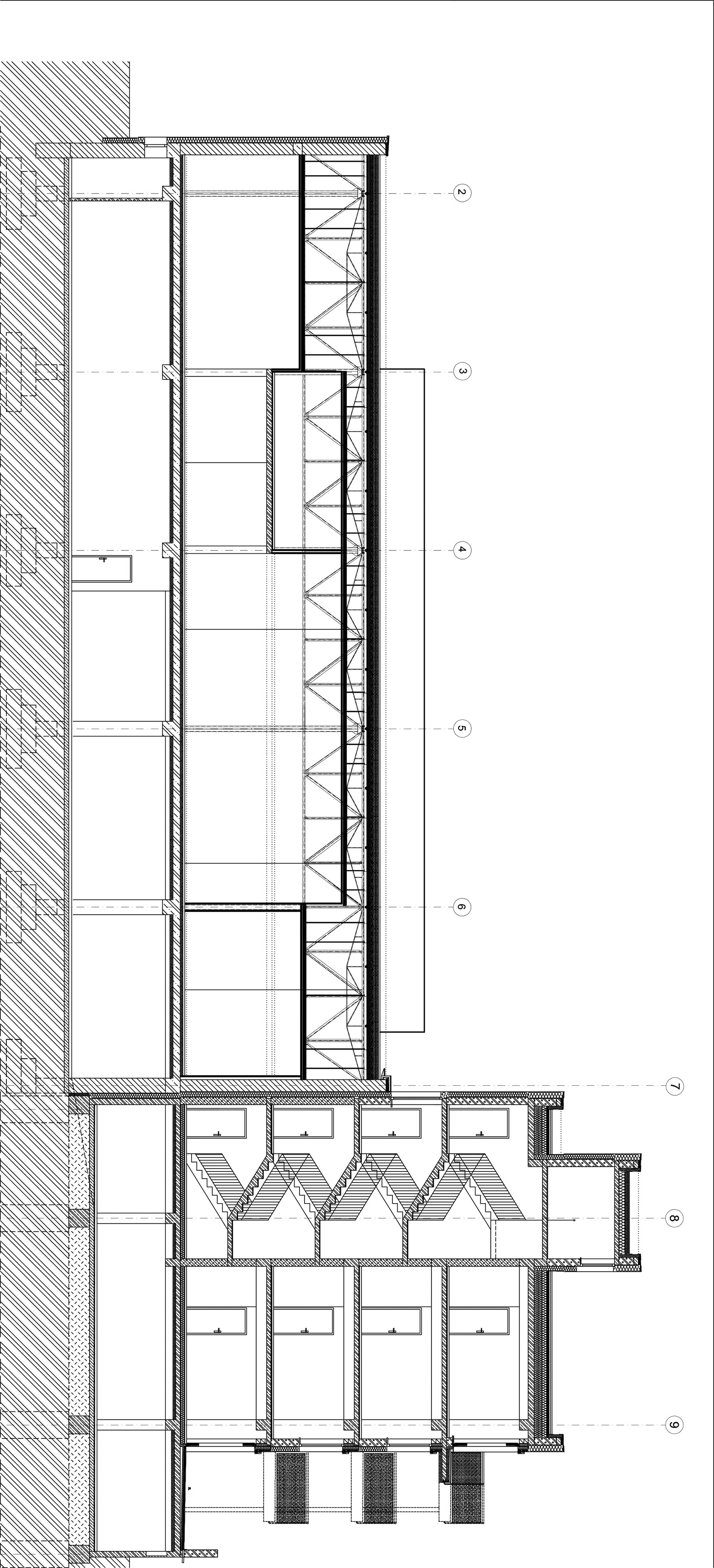
Späť na článok Zelené átrium – prvý bytový dom v pasívnom štandarde na Slovensku
11 / 15
12 rez B B
12 rez B B
ASB Logo ASB Logo