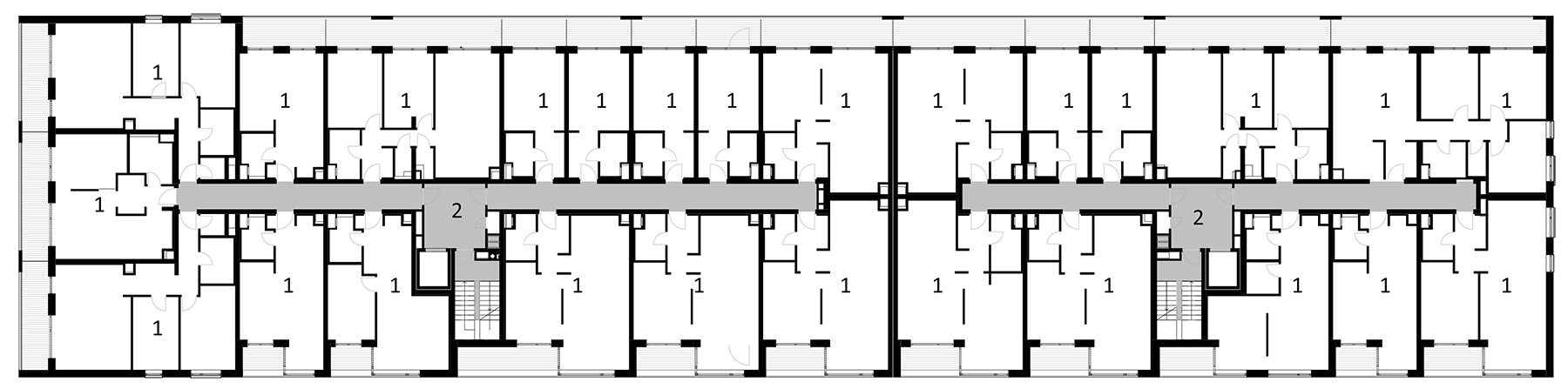
Späť na článok Slnečnice – zóna Viladomy: atraktívny priestor na bývanie
12 / 15
podoryys
podoryys
ASB Logo ASB Logo