Späť na článok
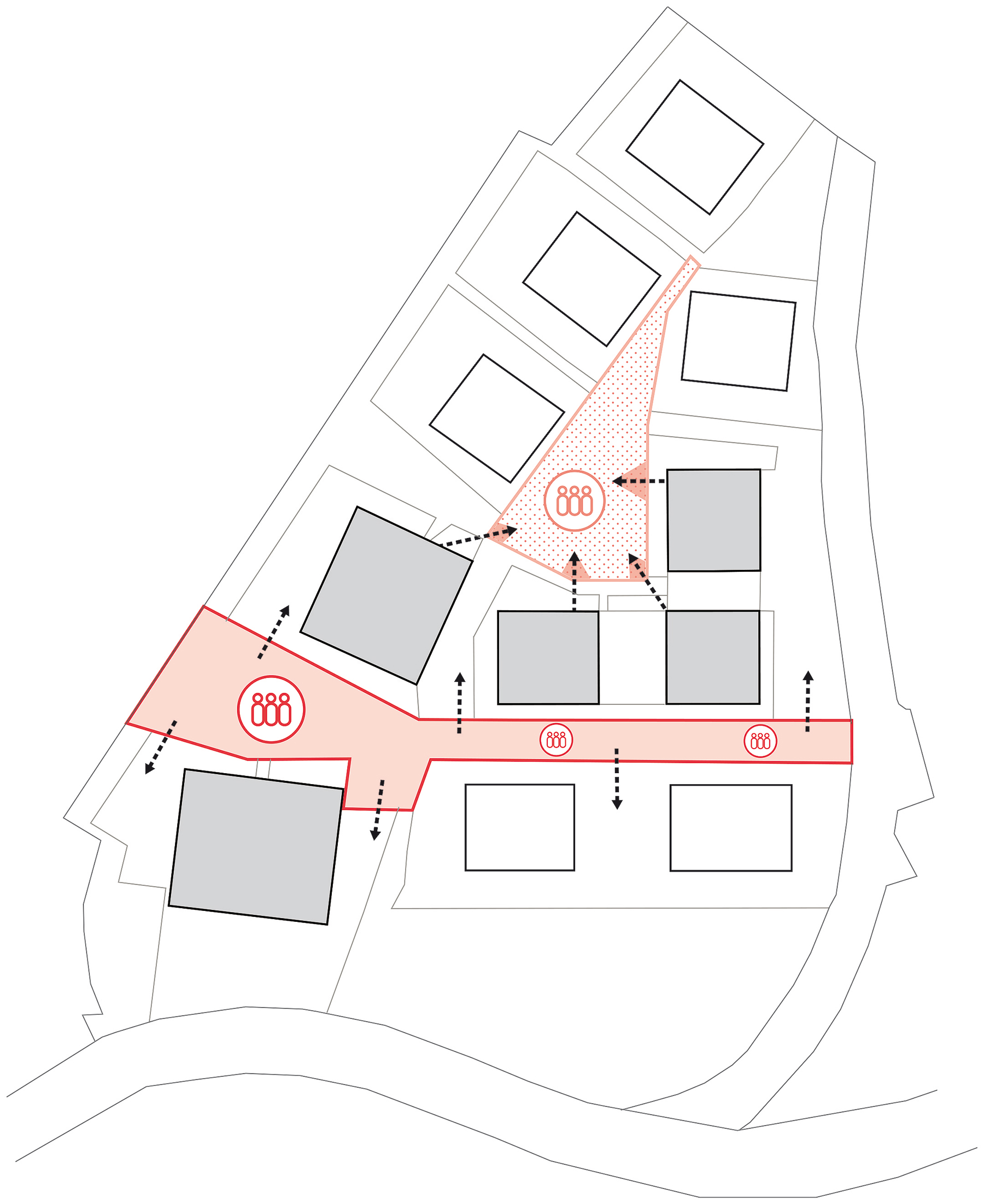
Ocenený bytový komplex Eppan má komunitný charakter
9 / 14
Schemakolektivnypriestor